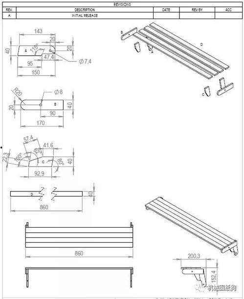
你有没有遇到过这样的烦恼:拿到一张储料架穿模图纸,上面密密麻麻的都是线条和数字,看得你眼花缭乱,完全不知道从何看起?别急,今天就来给你详细解析教你如何轻松读懂储料架穿模图纸!
一、认识图纸的基本要素

首先,你得知道储料架穿模图纸上的基本要素有哪些。一般来说,主要包括以下几个方面:
1. 视图:图纸上的视图有正视图、侧视图、俯视图等,分别展示了储料架的正面、侧面和顶部结构。
2. 尺寸标注:这些数字和字母组合标注了储料架各个部分的尺寸,包括长度、宽度、高度等。
3. 材料标注:图纸上的材料标注告诉你储料架各个部分所使用的材料,比如钢材、铝合金等。
4. 符号和标记:这些符号和标记代表了特定的工艺要求或注意事项,比如焊接符号、螺纹符号等。
二、如何看懂视图

储料架穿模图纸上的视图是理解整个结构的关键。以下是一些看图技巧:
1. 正视图:从储料架正面看,可以看到其整体形状和尺寸。注意观察各个部分的连接方式。
2. 侧视图:从储料架侧面看,可以了解其高度和宽度。同时,侧视图还能展示出储料架的内部结构。
3. 俯视图:从储料架顶部看,可以了解其内部空间布局和各个部分的相对位置。
三、尺寸标注的解读

尺寸标注是储料架制造过程中的重要依据。以下是一些解读尺寸标注的技巧:
1. 基本尺寸:这些尺寸标注了储料架各个部分的基本尺寸,如长度、宽度、高度等。
2. 公差:公差是指尺寸允许的偏差范围,确保储料架的精度。
3. 配合要求:配合要求标注了储料架各个部分之间的配合关系,如间隙、过盈等。
四、材料标注的识别
材料标注告诉你储料架各个部分所使用的材料,以下是一些识别材料标注的技巧:
1. 材料名称:如钢材、铝合金、塑料等。
2. 材料牌号:如Q235、6061等,表示材料的性能和标准。
3. 表面处理:如镀锌、喷漆等,表示材料表面的处理方式。
五、符号和标记的解读
符号和标记是储料架制造过程中的重要参考。以下是一些解读符号和标记的技巧:
1. 焊接符号:表示储料架的焊接部位和焊接方式。
2. 螺纹符号:表示储料架的螺纹部位和螺纹规格。
3. 加工要求:表示储料架的加工工艺和精度要求。
通过以上五个方面的详细解析,相信你已经对储料架穿模图纸有了更深入的了解。当然,实际操作中还需要结合具体情况进行判断。希望这篇文章能帮助你轻松读懂储料架穿模图纸,为你的工作带来便利!
转载请注明出处:admin,如有疑问,请联系()。
本文地址:http://www.agkjwqwdj.com/post/1192.html
